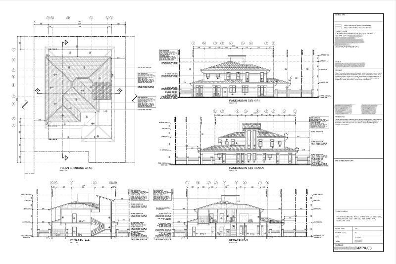
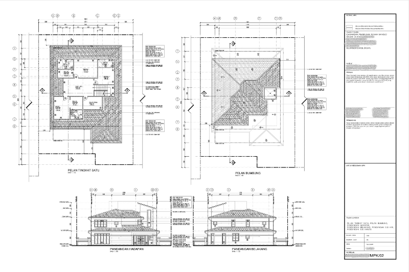
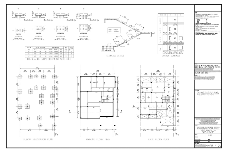
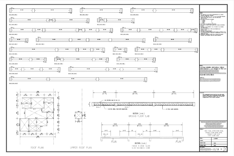
Project : Renovation 2 Storey Bungalow House Location : Persiaran Raja Muda Musa, 41100 Klang, Selangor Darul Ehsan. Approved Year : 2011 Authority : Majlis Perbandaran Klang
WhatsApp us